Porzione di bifamiliare con due appartamenti indipendenti nella campagna di Sissa (CS6)
A soli 3 km da Sissa, immersa nella quiete della…
€265.000
Torricella, Sissa Trecasali, Parma, Emilia-Romagna, 43018, Italia
In vendita
€175.000
Immagina di rientrare a casa dopo una giornata piena e trovare ad accoglierti la luce, il silenzio della campagna e uno spazio che sa davvero farti respirare.
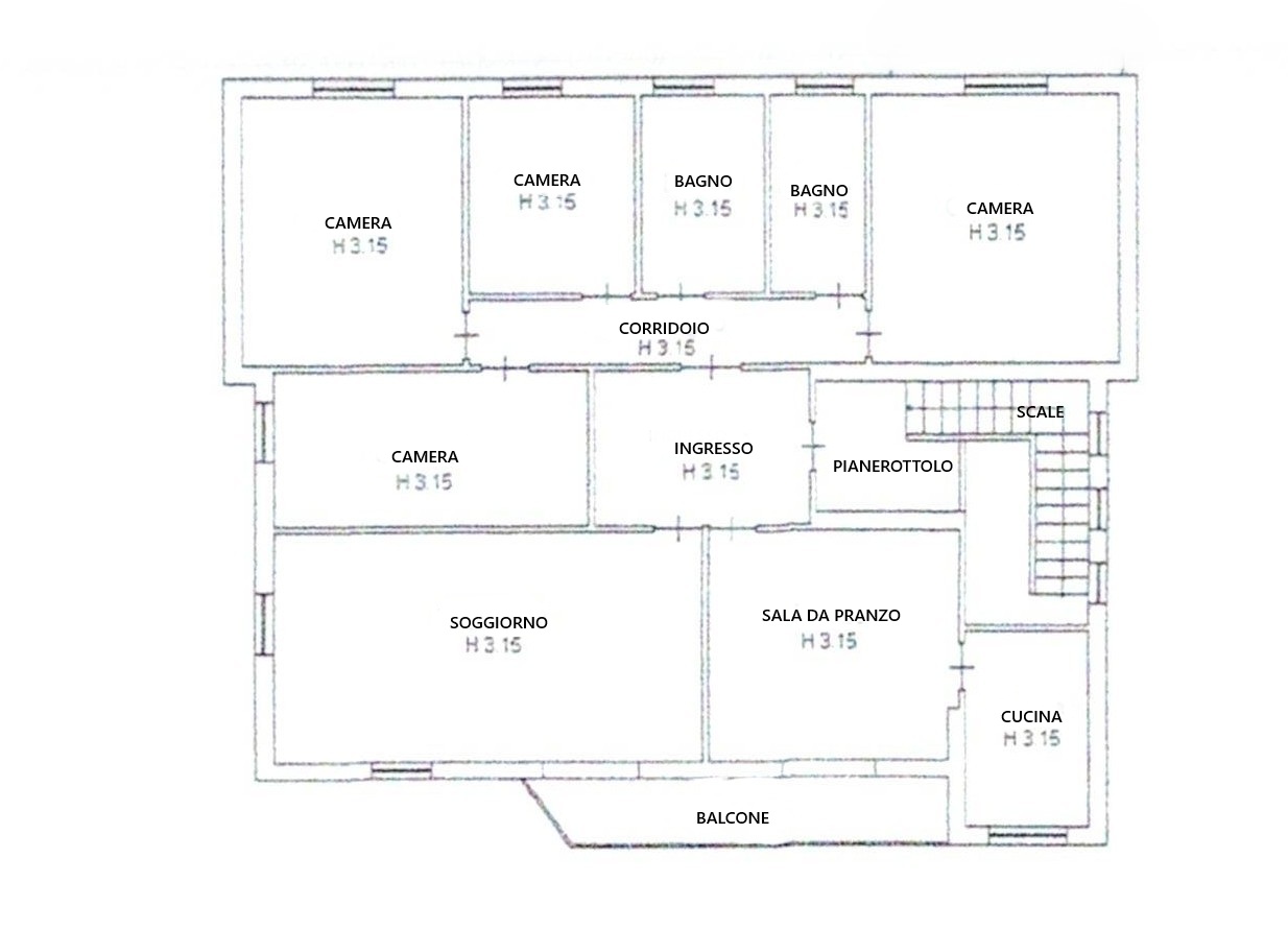
A Torricella di Sissa, in una tranquilla frazione immersa nel verde, ti presentiamo questa porzione di bifamiliare al primo piano, con ingresso indipendente, circa 200 mq di abitazione e 800 mq di area esterna: un luogo dove ogni ambiente è pensato per essere vissuto con comfort e serenità. La casa, edificata nel 2011, unisce spazi generosi a caratteristiche costruttive recenti.
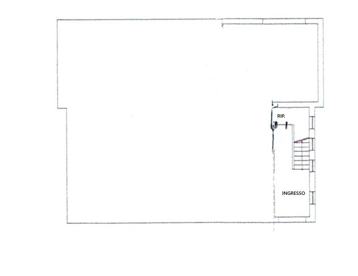
L’ingresso, al piano terra, è riservato e funzionale, con un pratico ripostiglio nel sottoscala. Da qui, la scala privata conduce al primo piano, dove un ingresso separa in modo armonioso la zona giorno dalla zona notte.
La zona living è ampia, luminosa e accogliente: il soggiorno, impreziosito dal camino, è illuminato da una porta finestra e due finestre che regalano luce naturale durante tutta la giornata e accesso al balcone. Accanto, la sala da pranzo, anch’essa con uscita sullo stesso balcone, è perfetta per momenti conviviali. Il cucinotto, raccolto e funzionale, resta collegato ma discreto, così da mantenere separata la zona operativa dalla zona pranzo.
La zona notte è pensata per offrire spazio e versatilità: quattro camere da letto – due matrimoniali, una doppia e una singola – ideali per una famiglia numerosa o per chi desidera uno studio o una stanza hobby. Completano la zona due bagni, entrambi con doccia.
Le finiture donano eleganza e carattere all’abitazione: pavimenti in marmo, porte in vetro che amplificano la luce, aria condizionata in ogni ambiente, infissi con doppi vetri e porta blindata.
All’esterno, la proprietà offre spazi davvero generosi e ben distribuiti: sul fronte troviamo una zona verde piantumata, mentre lateralmente si sviluppa un comodo cortile. Sul retro si apre il cuore dello spazio esterno, con garage, rimessa attrezzi e un portico in legno, perfetto come posto auto coperto o come area ideale per pranzi e cene all’aperto. A completare, un’ulteriore porzione di giardino con prato e alberi, uno spazio sicuro e completamente recintato, ideale per bambini e animali. L’intera area esterna, di circa 800 mq, può essere resa indipendente dall’altra porzione della bifamiliare.
Un valore aggiunto importante: è disponibile anche l’altra unità della villa, situata al piano terra. Una soluzione perfetta per chi desidera vivere vicino a genitori, figli o fratelli, mantenendo al tempo stesso la propria indipendenza, oppure per chi cerca un investimento familiare completo.
Se stai cercando tranquillità, eleganza e una casa capace di adattarsi davvero alla tua famiglia, contattaci e vieni a scoprirla di persona.
A soli 3 km da Sissa, immersa nella quiete della…
€265.000
A Mezzano Rondani, in una zona tranquilla e riservata ma…
€49.000
Owning a home is a keystone of wealth… both financial affluence and emotional security.
Suze OrmanHai bisogno?